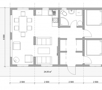
Проект модульного дома
Проект модульного дома в Армавире
Modulnie Zdaniya – предоставляет на ваш выбор проекты модульных домов, а так же предлагает Модульные дома для круглогодичного и временного проживания ✅ под ключ. Мы предлагаем ознакомится с типовыми и индивидуальными проектам недорого. Изготовление на собственном производстве.
Преимущества модульных домов
- Скорость сборки
- Короткие сроки производства
- Не требуется проект
- Круглогодичное и временное проживание
- Низкая цена
- Мобильность здания
Купить модульный дом с проектом
Купить модульный дом под ключ у нас — это сроки производства от 14 до 30 дней, транспортировка до места строительства и монтаж здания занимает 1-5 дней в зависимости от «величины» строительства.
Заказать модульный дом
Заказывайте модульный дом в Армавире под ключ у нас. Мы обеспечим лучшие цены и качество, а так же скорость производства и возведения конструкции вас приятно удивит.
Производство модульных домов в Армавире: произведем быструю оценку стоимости.
Оставляйте заявку или позвоните по номеру +79780761562 и получите консультацию по модульным домам







